Home
About
Plans
Advantage Series
Cape Cods
Capes
Duplex Series
Featured Floorplans
Cape
Ranch
Two-Story
Vacation
Gladiator Series
Heritage Series
Highland Series
Multi Family Models
Raised Ranches
Ranches
Shoreline Collection
The Darlington
The Radford
Two Story
Vacation
Gallery
Contact
Skip to primary navigation
Skip to main content
Skip to primary sidebar
(717) 383-9380
Call Us:
(717) 383-9380
|
Email Us:
info@outgo360.com
Top Rated Modular Home Builder in NJ
Home
About
Plans
Advantage Series
Cape Cods
Capes
Duplex Series
Featured Floorplans
Cape
Ranch
Two-Story
Vacation
Gladiator Series
Heritage Series
Highland Series
Multi Family Models
Raised Ranches
Ranches
Shoreline Collection
The Darlington
The Radford
Two Story
Vacation
Gallery
Contact
Show Search
Search this website
Hide Search
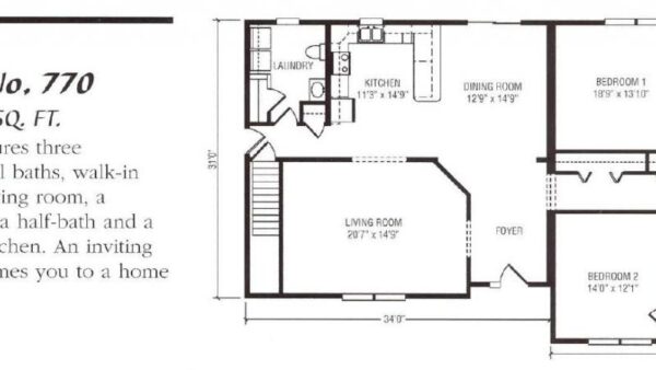
Ranch – Plan 770-M
Ranch – Plan 770-M quantity
Add to cart
Additional information
Additional information
Bathrooms
2.5
Bedrooms
3
Area
2139 sqft
Related products
Ranch – Plan 704-M
Ranch – Plan 708-M
Ranch – Plan 725-M
Two Story – Plan 780-M
For Further Information Or To Schedule An Appointment
CALL NOW