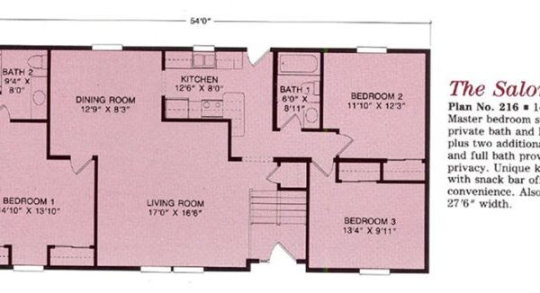
Salona – Plan 216-S

For Further Information Or To Schedule An Appointment